Skip To Content

Lot 16 Sid Hayes Rd

Jay, FL 32565
  • $55,000
  • STATUS: Closed
  • ON SITE: 498 Days
  • MLS #: 652332
Sold - 04/16/2025
$55,000
SOLD - 04/16/2025
  • 0
    BEDS
  • 4
    ACRES
  • 0
    BATHS
  • 0
    1/2 BATHS
Neighborhood:
Type:
Vacant Land / Lots
County:
Area:
Jay

School Information

Elementary School:
Middle School:
High School:

Description

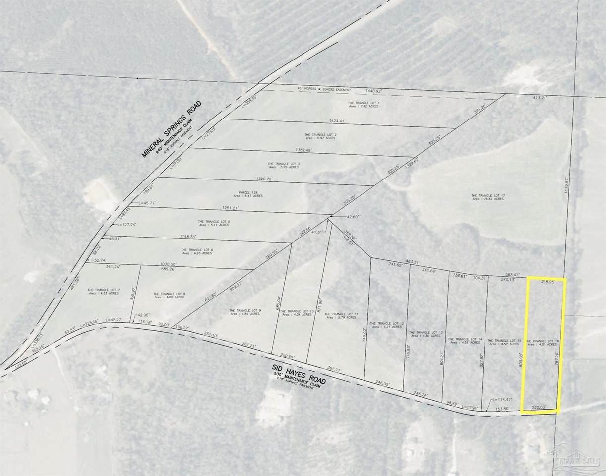
4 ACRE Lot 16 is located on paved Sid Hayes Rd on east side of the development. This homesite is about 220 feet wide and 800 feet deep. This parcel is all wooded and has beautiful hardwoods. Sid Hayes Rd is located away from the city traffic and hassle, yet the community is only 25 minutes away from Five Points in Pace, FL. The Mineral Springs area provides high elevations and stunning views of Escambia River Valley. The future residents will be able to enjoy the serene and private feel of this charming section of Santa Rosa County countryside. This new community is situated only 5 minutes from Escambia River and Chumuckla Springs Boat Ramp (on the east side) and about 5 minutes from Chumuckla Hwy and Hwy 178 (on the west side). Mineral Springs Rd lots are located only 25 to 30 minutes away from the convenience of Pace shopping and local restaurants and about 45 minutes from Downtown Pensacola. This land development is situated about an 1 hour and 15 minutes away from The Gulf of Mexico including popular beach resort communities such as Pensacola Beach and Perdido Key.

Monthly Payment Calculator



© 2026 by the Multiple Listing Service of the Pensacola Association of REALTORS®. This information is believed to be accurate but is not guaranteed. Subject to verification by all parties. This data is copyrighted and may not be transmitted, retransmitted, copied, framed, repurposed, or altered in any way for any other site, individual and/or purpose without the express written permission of the Multiple Listing Service of the Pensacola Association of REALTORS®. Florida recognizes single and transaction agency relationships. Information Deemed Reliable But Not Guaranteed. Any use of search facilities of data on this site, other than by a consumer looking to purchase real estate, is prohibited. Data last updated: 2026-01-24T08:54:24.717.
www.perdidokeypropertysearch.com/homes/155114251
Print Image

Lot 16 Sid Hayes Rd Jay, FL 32565

  • Price: $55,000
  • Status: Closed
  • On Site: 498 Days
  • Updated: 53 min ago
  • MLS #: 652332
0
Beds
0
Baths
0
½ Baths
4
Acres
Neighborhood:
None
County:
Santa Rosa
Area:
Jay
Elementary School:
Chumuckla
Middle School:
Central
High School:
Central
Property Description
4 ACRE Lot 16 is located on paved Sid Hayes Rd on east side of the development. This homesite is about 220 feet wide and 800 feet deep. This parcel is all wooded and has beautiful hardwoods. Sid Hayes Rd is located away from the city traffic and hassle, yet the community is only 25 minutes away from Five Points in Pace, FL. The Mineral Springs area provides high elevations and stunning views of Escambia River Valley. The future residents will be able to enjoy the serene and private feel of this charming section of Santa Rosa County countryside. This new community is situated only 5 minutes from Escambia River and Chumuckla Springs Boat Ramp (on the east side) and about 5 minutes from Chumuckla Hwy and Hwy 178 (on the west side). Mineral Springs Rd lots are located only 25 to 30 minutes away from the convenience of Pace shopping and local restaurants and about 45 minutes from Downtown Pensacola. This land development is situated about an 1 hour and 15 minutes away from The Gulf of Mexico including popular beach resort communities such as Pensacola Beach and Perdido Key.
Exterior Features

Frontage Length Road Frontage(220) Lot Features WoodedCentral Access Road Frontage Type County Road Road Surface Type Paved

Property Features

Horse YN No Land Lease Amount Frequency Annually Listing Agreement Exclusive Right To Sell Mineral Rights No Property Sub Type Land/Acreage Sale Rent For Sale Sewer None Topography High/DryLevelWetlands Water Source None

Listing provided by KELLER WILLIAMS REALTY GULF COAST: 850-471-5000.


© 2026 by the Multiple Listing Service of the Pensacola Association of REALTORS®. This information is believed to be accurate but is not guaranteed. Subject to verification by all parties. This data is copyrighted and may not be transmitted, retransmitted, copied, framed, repurposed, or altered in any way for any other site, individual and/or purpose without the express written permission of the Multiple Listing Service of the Pensacola Association of REALTORS®. Florida recognizes single and transaction agency relationships. Information Deemed Reliable But Not Guaranteed. Any use of search facilities of data on this site, other than by a consumer looking to purchase real estate, is prohibited. Data last updated: 2026-01-24T08:54:24.717.
 
https://bt-photos.global.ssl.fastly.net/pensacola/orig_boomver_1_652332-2.jpg https://bt-photos.global.ssl.fastly.net/pensacola/orig_boomver_1_652332-2.jpg https://bt-photos.global.ssl.fastly.net/pensacola/orig_boomver_1_652332-2.jpg
Logo
The Kathy Justice Team - Levin Rinke Realty
14112 Perdido Key Dr
Perdido Key FL, 32507